人工芝と目隠しフェンスで安心してくつろぐお庭リフォーム
プラン内容 No.3070
※データは見積当時のものです
- 見積参考価格
- 111 万円
- 工事面積
- 42m 2
- 工事種別
- リフォーム外構
- 地形
- 角地
- 方位
- 南西
- 車の台数
- 1台
- 登録日
- 2025-06-08
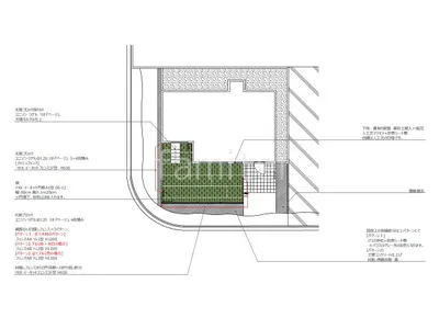
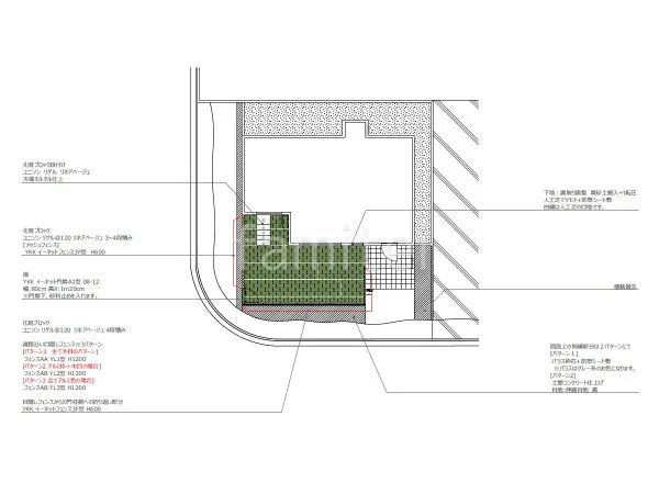
イメージパース・図面






コメント
お庭スペース全体に人工芝を敷き、メンテナンスフリーで年間を通して緑を楽しめる空間を作りました。 周囲には化粧ブロック ユニソン リゲルを積み上げ、目隠しフェンス LIXIL AB YL3型を設置することでプライバシーを確保し、安心してくつろぐ事ができます。 さらに、片開き門扉 YKKAP イーネット門扉A1型を設置し、使い勝手と防犯性を両立しました。






